Southern Pacific Lines
Coast Line Division
“The Route of the Octopus”
Southern Pacific Lines
Coast Line Division
“The Route of the Octopus”
General
AAR Car Deisgnations
Class “T” – TANK CAR TYPE
T – Tank car. Tank car means any car which is used only for the transportation of liquids, liquefied gases, compressed gases, or
solids that are liquified prior to unloading. Car may be without underframe if container serving as superstructure is designed to
serve as underframe. If car has underframe, it must be designed only for the carriage of one or more enclosed containers (with or
without compartments) that form the superstructure and are integral parts of the car. All such containers must be securely
attached to the underframe when offered for transportation but may have demountable features. Before any car can be considered
a tank car hereunder, the design of all such containers thereon must have been approved 1) by the AAR Committee on Tank Cars
as having met all applicable AAR specifications and requirements and 2) by said Committee or, in appropriate cases, the
Department of Transportation, as having met all applicable specifications and requirements of Subpart 1 of the Regulations of
Transportation for Explosives and other Dangerous Articles.
TA tank car (ICC 103 series)
Tank Cars
Gallonage
Tank cars were not identical and that stencil gives the gallonage of THAT car, not of the whole class. Multiple photos of a class prove this.
Tony Thompson
Classes of tank cars had a nominal capacity. "Nominal" in this case also means "theoretical" capacity. The measured capacity of each car varies somewhat because rolled steel sheets of that size have some slight variation, they are not perfectly circular in the mathematical sense. Even a 1/64" difference in a car that large could change the gallonage by a measurable amount.
No doubt box cars also had variations, but since box cars tariffs were based on weight, the actual "cubic foot" capacity of box cars did not have to be measured -- they just went with the theoretical volume. Tank car tariffs were based on gallonage, so that had to be accurate. So, box cars got reweighed at regular intervals, but tank cars never did.
Tim O'Connor
Paint
black -
silver - fuel service cars painted silver with black lettering in mid-50’s, (*see T/71)
After 8/9/48, these cars were silver. SP’s mechanical circular No. 310-B issued 3/17/41, revised 8/9/48 states in part “Tanks of gasoline, switchlight oil and diesel fuel tank cars including dome, dome attachments and hand rail brackets, must receive two coats of Ready-Mixed Aluminum paint.”
Trucks
Prior to WW II, SP usually painted trucks black. After the war, they tended to paint everything body color, i.e. boxcar red on cars which had that color body. Numerous postwar builder photos show trucks the same color as the car body.
Tony Thompson
Underframes
Prior to WW II, SP usually painted underframes black. After the war, they tended to paint everything body color. Tank car trucks remained black.
Tony Thompson
Lettering & Numbering
pre 48 - With white lettering
50’s - With black lettering
silver - fuel service cars painted silver with black lettering in mid-50’s, (*see T/71)
Reweigh Date
Tank car cargoes were billed by gallonage, not by weight, so the car’s light weight was of no importance (unlike all other types of freight cars). Prototype photos commonly show tank cars having weigh dates a decade, or even multiple decades, prior to the photo date. But when cars were repaired, they were ordinarily reweighed, and SP tank cars often do show that change.
Tony Thompson
Gallonage Stencil
Tank cars were not identical and that stencil gives the gallonage of THAT car, not of the whole class. Multiple photos of a class prove this.
Tony Thompson
Brake Reservoir Lettering
Tank cars are usually cars whose reservoirs are clearly visible. The COTS information stenciled on the side of the car where the reservoir was mounted and placed as closely to the air release rod as possible. The lettering size is 1-1/2 inches.
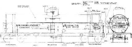
Diesel Fuel Service
SP had a distinctive aluminum-end-stripe tank cars, assigned to diesel fuel service. The scheme comes with a 41-inch high aluminum stripe on the car ends, and the legends DIESEL FUEL OIL SERVICE on both sides and ends. All lettering is white except for black lettering on the aluminum stripe. The text block headed INSTRUCTIONS TO SHIPPERS was placed at the location on the tank indicated by Note 7 on the drawing.
Drawing
Drawing on Page 326 of Southern Pacific Freight Cars, Volume 5: Hopper, Covered Hopper and Tank Cars.

Modeling Tank Cars
Back in 2002, Tony Thompson published a short article in the Southern Pacific Historical and Technical Society magazine, Trainline (issue 71, Spring 2002), on a method to model SP tank cars in HO scale. The recent release of a decal set for such tank cars (see: http://modelingthesp.blogspot.com/2011/05/sp-tank-car-decals.html), combined with some changes in modeling practice since 2002, suggest that an updated and improved version of that article could be useful. This post is that update.
Dimensions
For accurate HO scale dimension of grabirons, cables, hoses, vents, stanchions, etc... see:
Diesel Locomotive Data http://www.urbaneagle.com/data/RRstddims.html
The information is gleaned from the Diesel Modelers' Mail List and the Freight Car Mail List and email contributors.
Modeling Details
Owl Mountain Models
Owl Mountain Models is proud to offer a new line of durable detail parts for steam era SP cars. All models are based on prototype drawings, physical measurements, and photos & months of research.
Safety Vents
#1001 Single 5" "L"-type Safety Vents (for use singly on tank cars under ~7K gal. or in pairs on tank cars over 7K gal.) SP classes O-50-1, -2 & -5. $4.95ea or $20/5pkg.
#1002 "Twin" 5" "L"-type Safety Vents (for 7K to 12.5K gal. tank cars) SP classes O-50-6,-7,-8,-9. $4.95ea or $24/6pkg.
These vents were M.C.B. recommended from 1904-1918, therefore were also used on other cars built for other companies and leasers. After about 1918 it became clear the L-shape part of the vent was not the most ideal way to vent expanding gasses from the tank as the could be submerged in the liquid in the cars. The more familiar 'top vents' were then used as seen on most manufactures' offerings. These detail vents are cast brass with etched flange details. Installation instructions included for selected SP classes, however the modeler should review prototype references for exact mounting location for their application.
For more information go to: www.owlmtmodels.com
Athearn
The Athearn tank car is clearly modeled from an SP prototype. With simple modifications, this model can be very accurate.
Modeling Tank Cars Lettering & Numbering
Lettering & Numbering
Decals
Jerry Glow Custom Decals
He is now out of business. This decal set was available in both black and white. Both sets are necessary to do SP’s distinctive aluminum-end-stripe tank cars, assigned to diesel fuel service, because both black and white lettering was on those cars. The sets can also be used for plain black cars in general service, and for both all-silver fuel cars (not pictured), and yellow gasoline cars. Each set has enough material to do multiple cars. http://home.comcast.net/~jerryglow/decals.html
Microscale
#87-1386 SP/SSW tank cars (does 20k and 23k modern tank cars).
Tim O'Connor
Sunshine Decals
Use the Sunshine PFE set of black reweigh and repack data to choose a 1942 reweigh date for a car.
Brake Reservoir Lettering
Tank cars are usually cars whose reservoirs are clearly visible. The COTS information stenciled on the side of the car where the reservoir was mounted and placed as closely to the air release rod as possible. It is good to have a few reservoirs visibly stenciled. Most decal sets do not include any of the needed lettering.
Tony Thompson http://modelingthesp.blogspot.com/2014/04/brake-service-rules-and-modeling.html
Early Tank Cars
CS-12
Drawings
CS-12 Design Southern Pacific Freight Cars, Volume 5: Hoppers, Tank Cars, pg. 398
Reference
Southern Pacific Freight Cars, Volume 5: Hoppers, Tank Cars, pg. 194
CS-12A
Drawing
Southern Pacific Freight Cars, Volume 5: Hoppers, Tank Cars, pg. 197, 198
Reference
Southern Pacific Freight Cars, Volume 5: Hoppers, Tank Cars, pg. 194, 196-199
CS-13
Drawing
Southern Pacific Freight Cars, Volume 5: Hoppers, Tank Cars, pg. 200
Reference
Southern Pacific Freight Cars, Volume 5: Hoppers, Tank Cars, pg. 201
CS-13A
Reference
Southern Pacific Freight Cars, Volume 5: Hoppers, Tank Cars, pg.
CS-24
SP 49400
Drawing
Southern Pacific Freight Cars, Volume 5: Hoppers, Tank Cars, pg. 400
Reference
Southern Pacific Freight Cars, Volume 5: Hoppers, Tank Cars, pg. 212-213
CS-25A
SP 51196-51678
SP 55838-55979
Lettering & Numbering
For a lettering diagram see: Southern Pacific Freight Cars, Volume 5: Hoppers, Tank Cars, pg. 228
Drawing
Southern Pacific Freight Cars, Volume 5: Hoppers, Tank Cars, pg. 214, 224
CS-25A Design Southern Pacific Freight Cars, Volume 5: Hoppers, Tank Cars, pg. 399
Reference
Southern Pacific Freight Cars, Volume 5: Hoppers, Tank Cars, pg. 212, 225-231
Modeling CS-25
MW service as water car.
Westside (brass)
CS-32
SP 51116-51195
Drawing
Southern Pacific Freight Cars, Volume 5: Hoppers, Tank Cars, pg. 218
Southern Pacific Freight Cars, Volume 5: Hoppers, Tank Cars, pg. 400
Reference
Southern Pacific Freight Cars, Volume 5: Hoppers, Tank Cars, pg. 212, 219
Specific Tank Cars
0-40
There weren't ever any cars classed as O-40, at least on SP.
Tony Thompson
In a 1950 ORER shows a 31'- 8", 40 ton tank car numbered SP 47732. It's an ex-EP&SW car, built in 1907, and as it happens, an 8000-gallon car.
Tony Thompson
0-50-1
SP #50000-50249
Former O-50-1s or O-50-2s is part of a large numbers of these two classes were converted to roadway water cars in 1936 and 1937.
Ken
Drawing
Southern Pacific Freight Cars, Volume 5: Hoppers, Tank Cars, pg. 243
Reference
Southern Pacific Freight Cars, Volume 5: Hoppers, Tank Cars, pg. 234, 237
0-50-2
SP #50250-50874
SP #50875-51079
There was a former O-50-2 (SP 50674) that the car card states "Equipped for handling dry sand." (SPMW 3049 (3rd)). SPMW 3316 (2nd) was a 1909 AC&F box that was used in sand service around Taylor Round House.
SP DTCTR
Former O-50-1s or O-50-2s is part of a large numbers of these two classes were converted to roadway water cars in 1936 and 1937.
Ken
Drawing
Southern Pacific Freight Cars, Volume 5: Hoppers, Tank Cars, pg. 235
Reference
Southern Pacific Freight Cars, Volume 5: Hoppers, Tank Cars, pg. 234, 236, 244-249
Paint
There is a photo of O-50-2 water car conversion in SP Freight Cars Vol 5 on page 254. And in oxide red!
0-50-4
ex- NWP cars
Reference
Southern Pacific Freight Cars, Volume 5: Hoppers, Tank Cars, pg. 234
0-50-5
SP #51080-51132
some ex- H&TC cars
Drawing
Southern Pacific Freight Cars, Volume 5: Hoppers, Tank Cars, pg. 272-273
Reference
Southern Pacific Freight Cars, Volume 5: Hoppers, Tank Cars, pg. 270-271, 274, 292
0-50-6
SP #49100-49399
Lettering & Numbering
For a lettering diagram see: Southern Pacific Freight Cars, Volume 5: Hoppers, Tank Cars, pg. 306
Reference
Southern Pacific Freight Cars, Volume 5: Hoppers, Tank Cars, pg. 270, 275-279, 292-294
See the class page: http://www.railgoat.railfan.net/spcars/byclass/tank/o050-06.htm
O-50-7
SP #48100-48199
In the 1928 ORER, it shows they were renumbered as SP 61791-61888.
AC&F SP 12,000 gal. cars. Class O-50-7 was built in 1917-1918 and thus cannot have been Type 21.
SP had many 12,000 gal. tank cars. According to Kaminski's book (pg. 61) a lot (Lot #8358) of 400 cars as ordered. Of that car order of 400 cars, Class O-50-7, 100 were for Pacific Lines (48100-48199) and the balance went to Atlantic Lines, shared among ML&T, LW, and GH&SA.
Every tank car in those days was slightly different due to the riveting assembly. SP published gallonage tables to give exact values for each car; so did most tank car owners. Nominal capacity was 12,500 gallons.
Train Shed Cyc. #12 shows only 6000, 7000, 8000, and 10,000 gallons. Much later SP did have an 8000-gallon class, but built by General American, not AC&F.
Lettering & Numbering
For a lettering diagram see: Southern Pacific Freight Cars, Volume 5: Hoppers, Tank Cars, pg. 281, 306
Reference
Southern Pacific Freight Cars, Volume 5: Hoppers, Tank Cars, pg. 270, 280-283
See the class page: http://www.railgoat.railfan.net/spcars/byclass/tank/o050-07.htm
0-50-8
SP #48200-48399.
They continued in service through the 50’s.
Details
All tank cars had single platforms. That is a platform below the dome on just one side + a ladder on that same side as seen from the B or brake end of the car.
safety valve
SP cars of this class had the twin safety valve on the tank dome.
See: Trainline #109, pg. 4 for drawing of elbow.
brake system
#48347 car's brake system was upgraded to AB. The valve was mounted underneath the running board on the left (dome walkway) side of the car, just about even with the A end of the dome walkway. It makes sense that the valve sits outboard, away from the center frame, since there has to be room to maintain the piping that was attached to the back side of the valve. There’s a lot of piping bridging the gap in open space between the valve and the frame. They added two angle braces under the running board, and mounted the valve on the angles.
Pete Hall
Lettering & Numbering
For a lettering diagram see: Southern Pacific Freight Cars, Volume 5: Hoppers, Tank Cars, pg. 306
Reference
Southern Pacific Freight Cars, Volume 5: Hoppers, Tank Cars, pg. 270, 286-291, 295
Modeling 0-50-8 Tank Cars
Remove the platform on one side to be correct.
Owl Mountain Models
They make the twin safety valve for the tank dome.
Lettering & Numbering
Decals
Jerry Glow Decals
The Jerry Glow decal set will do any post-1931 SP tank car lettering (i.e. older cars which were repainted), and class numbers and built dates are included.
Tony Thompson
0-50-9
SP #47880-48079
SP cars of this class had the twin safety valve on the tank dome.
See: Trainline #109, pg. 4 for drawing of elbow.
They continued in service through the 50’s.
Paint
These cars were painted all-aluminum or aluminum-end-stripe fuel paint schemes.
Lettering & Numbering
For a lettering diagram see: Southern Pacific Freight Cars, Volume 5: Hoppers, Tank Cars, pg. 306
Drawing
Southern Pacific Freight Cars, Volume 5: Hoppers, Tank Cars, pg. 301
Reference
Southern Pacific Freight Cars, Volume 5: Hoppers, Tank Cars, pg. 298-302, 304
Modeling 0-50-9 Tank Cars
Owl Mountain Models
They make the twin safety valve for the tank dome.
Lettering & Numbering
Decals
Jerry Glow Decals
The Jerry Glow decal set will do any post-1931 SP tank car lettering (i.e. older cars which were repainted), and class numbers and built dates are included.
Tony Thompson
0-50-10
SP #58000-58199
SP cars prior to this class had the twin safety valve on the tank dome.
See: Trainline #109, pg. 4 for drawing of elbow.
They continued in service through the 50’s.
Paint
Tank cars were painted black.
Lettering & Numbering
For a lettering diagram see: Southern Pacific Freight Cars, Volume 5: Hoppers, Tank Cars, pg. 306
Reference
Southern Pacific Freight Cars, Volume 5: Hoppers, Tank Cars, pg. 298, 304, 313, 317
Modeling 0-50-10 Tank Cars
Owl Mountain Models
They make the twin safety valve for the tank dome.
Lettering & Numbering
Decals

Jerry Glow Decals
The Jerry Glow decal set will do any post-1931 SP tank car lettering (i.e. older cars which were repainted), and class numbers and built dates are included.
Tony Thompson
O-50-11 Gasoline Service
SP #58200-58399
All tank cars had single platforms. That is a platform below the dome on just one side + a ladder on that same side as seen from the B or brake end of the car. Therefore remove the platform on one side to be correct.
Cars in this service have had side ladders and dome platforms removed.
Paint
Tank cars were painted in the same buff color used on S.P. buildings prior to 1956, (Colonial Yellow, Common Standard 22).
Tanks (gasoline) buff with black underframe.
Lettering & Numbering
With black lettering (gasoline service)
For a lettering diagram see: Southern Pacific Freight Cars, Volume 5: Hoppers, Tank Cars, pg. 322
Reference
Southern Pacific Freight Cars, Volume 5: Hoppers, Tank Cars, pg. 298, 303, 312, 314, 316-317
Modeling 0-50-11 Tank Cars
Paint
Tanks (gasoline) buff with black underframe.
15 drops- Floquil Armour Yellow
1 drop- Roof Brown
or mix 50% Floquil RR133- SP Armour Yellow and 50% RR11- Reefer White
Lettering & Numbering
Decals
Jerry Glow Decals
The Jerry Glow decal set will do any post-1931 SP tank car lettering (i.e. older cars which were repainted), and class numbers and built dates are included.
Tony Thompson
O-50-12 Gasoline Service
SP #58400-58574
O-50-12is a 12,500 gal. car.
In 1928 General American built SP’s Class O-50-12 class cars (O for oil car, 50 for 50 tons capacity). It is 36’ long.
All tank cars had single platforms. That is a platform below the dome on just one side + a ladder on that same side as seen from the B or brake end of the car.
Cars in this service have had side ladders and dome platforms removed. These cars were the first with longitudinal tank seams.
When the Class O-50-12 cars were built in 1928, the cars were largely in revenue service. The SP continued to haul gasoline in revenue service, but the special paint scheme was no longer needed, since the usual safety placards could notify crews and workers that the cargo was or had been gasoline. By 1953, there appear to have still been some yellow cars. Photos of yellow cars, which of course represent a really small sample, don't seem to extend past 1955. There is ample evidence that some older tank cars evaded repainting for a lot of years, so that also would permit some leeway in modeling the yellow cars.
Tony Thompson
Paint
Tank cars were painted in the same buff color used on S.P. buildings prior to 1956, (Colonial Yellow, Common Standard 22) Tanks (gasoline) buff with black underframe.
All 175 cars of which were in fact delivered in Colonial Yellow for gasoline service. The dome and ends and bottom sheet were all painted that color.
Tony Thompson
Although most of the Class O-50-12 yellow gasoline cars remained so painted as of the end of World War II, most had been repainted black or in one of the fuel schemes by the early 1950s.
Dave Sieber
Diesel fuel oil service car were painted black with 41” wide aluminum end stripe.
(*see Southern Pacific Freight Cars, Volume 5: Hoppers, Tank Cars, pg. 327)
Lettering & Numbering
With black lettering (gasoline service)
Railroad initials, rather than the spelled-out road name, was introduced in 1946, because practically all photos of the yellow tank cars are in the pre-1946 scheme.
Tony Thompson
Gallonage Stencil
Tank cars were not identical and that stencil gives the gallonage of THAT car, not of the whole class. Multiple photos of a class prove this.
Tony Thompson
For a lettering diagram see: Southern Pacific Freight Cars, Volume 5: Hoppers, Tank Cars, pg. 322
Lee Gautreaux's site shows O-50-12 cars being 12,000 gallons and built in 1934. These are errors.
Tony Thompson
Drawing
Southern Pacific Freight Cars, Volume 5: Hoppers, Tank Cars, pg. 340
Reference
Southern Pacific Freight Cars, Volume 5: Hoppers, Tank Cars, pg. 298, 303, 312-313, 320-321
Photo of SP 1320 lettered as a supply car is a O-50-12 tank car with a pump added on one end.
(*see Railway Review, 9/18/26), entitled “Traveling Gasoline Station Supplies Track Men”.
Modeling 0-50-12 Tank Cars
Athearn
There are several minor discrepancies between the SP car and the Athearn model. The most evident is the height of the dome. Also evident are different hand brake equipment and safety valve arrangement. All are easily changed. Other details, such as grab irons and underbody parts, can also be improved. The subtle change, not evident in every photo, relates to dome walkways. The SP cars only had walkways on one side, the left side as viewed from the B or brake end of the car (as shown in the photo above). This model does come with the longitudinal tank seams.
Modify by raising the dome. The Athearn dome, about 10 scale inches from the top of the tank to the top of the cylindrical part of the dome, should be about 21 inches. Also, there should be two safety valves, not the three that are on the Athearn dome, and they should be paired behind the manway hinge, not spaced evenly around the circumference of the dome. Sacrifice an Athearn 3 dome car and add one dome to the top of the other. Remove the vents and leave just one.
Remove the extraneous double rivet rows on each side of the dome, which represent the location of tank dividers in a triple-compartment car, but which should not be present on a single-compartment car with one dome. The model shows three outlets, there should only be one.
Remove the platform on one side to be correct. Add Precision scale hand brake. The Athearn handrail supports are oversize and not located at the same spacing as SP’s tank car handrails.
The first step was to disassemble the tank from the underframe. Upgrade the car’s underframe by adding brake piping and rodding. Shave off those incorrect rivet rows, and removing the extra dome platform on the right side of the car.
Paint
The Athearn yellow is not the same as the correct SP Colonial Yellow. The most visible deficiency here is that the bottom sheet of the tank is black (a natural result of the Athearn division between tank top and bottom), but the prototype tanks were entirely yellow (actually the depot color, Colonial Yellow). Airbrush with Tru-Color’s paint no. TCP-153, Colonial Yellow. The dome and ends and bottom sheet all need to be painted that color. Be careful with the underframe, they are often brittle at this late date.
Tony Thompson
References
Method developed from ideas of R. Hendrickson Western Prototype Modeler, Vol, 3, May-June 1977, p. 17
Trainline, issue 71 (Spring 2002)
http://modelingthesp.blogspot.com/2011/05/modeling-sp-tank-cars.html
http://modelingthesp.blogspot.com/2014/04/modeling-sp-tank-cars.html
Lettering & Numbering
Athearn Lettering
The stock Athearn lettering is not accurate. It is generally too large, and also the Athearn car number, belongs to Class O-50-13. I am not aware that any cars of that class were actually assigned to gasoline service; most were from Class O-50-12.
Tony Thompson
Jerry Glow Decals
The Jerry Glow decal set will do any post-1931 SP tank car lettering (i.e. older cars which were repainted), and class numbers and built dates are included.
Tony Thompson
Sunshine Decals
Use the Sunshine PFE set of black reweigh and repack data to choose a 1942 reweigh date for a car.
Pecos River (brass)
Paint
Tanks (gasoline) buff with black underframe.
15 drops- Floquil Armour Yellow
1 drop- Roof Brown
or mix 50% Floquil RR133- SP Armour Yellow and 50% RR11- Reefer White
O-50-13 Gasoline Service
SP #58575-58774
O-50-13is a 12,500 gal. car.
O-50-13, was built by General American in 1942. It is 36’ long.
“Railroad Issues Gasoline from Supply Train Tank Car”. (*see Railway Age, 4/25/25)
The railroad had placed a 6000 gallon tank on a 40’ flat car and built a small shed on the end for a pump. The car was used in the supply train to resupply track workers with gasoline.
All tank cars had single platforms. That is a platform below the dome on just one side + a ladder on that same side as seen from the B or brake end of the car. Therefore remove the platform on one side to be correct.
Cars in this service have had side ladders and dome platforms removed.
Paint
Only tank cat delivered in gasoline paint scheme.
Tank cars were painted in the same buff color used on S.P. buildings prior to 1956, (Colonial Yellow, Common Standard 22) Tanks (gasoline) buff with black underframe.
Diesel fuel tank car SP #58691 was painted aluminum above the bottom sheet.
Lettering & Numbering
With black lettering (gasoline service)
For a lettering diagram see: Southern Pacific Freight Cars, Volume 5: Hoppers, Tank Cars, pg. 322
Gallonage Stencil
Tank cars were not identical and that stencil gives the gallonage of THAT car, not of the whole class. Multiple photos of a class prove this.
Tony Thompson
White Diamond on Tank car
In the 1950’s, cars in sugar service were lettered with a large letter “S” in white diamond. Below the car number is stenciled “FOR LIQUID SUGAR LOADING ONLY”. In later years, many of these cars were in fuel service.
A picture of a black tank car in Tucumcari New Mexico in the early 1970's, had a white diamond painted on the dome with an "S" painted on too. The original reporting marks were painted out, and it was already into the SPMW system.
The car was used in liquid sugar service, something to do with transporting liquid sugar between sugar processing centers or factories. It was indicated that the diamond S emblem meant the car was equipped for use in liquid sugar service, but no guarantee that it was at any particular moment. This nomenclature on the dome signifies bottom outlets modified to be SUITABLE for liquid sugar service. Although SP modified quite a few of its tank cars this way, relatively few were in such service at any one time. There are myriad pictures out there of diamond-S cars carrying fuel oil and lubricants.
Tony Thompson
Southern Pacific Freight Cars, Volume 5: Hoppers, Tank Cars, pg. 334-337
Reference
Southern Pacific Freight Cars, Volume 5: Hoppers, Tank Cars, pg. 318, 332
Modeling 0-50-13 Tank Cars
Athearn
Modify by raising the dome. Sacrifice an Athearn 3 dome car and add one dome to the top of the other. Remove the vents and leave just one. Remove the platform on one side to be correct. Add Precision scale hand brake.
Western PM May/Jun. 1977 - SP O-50-13 Tankcar #62798 - 62995 - Athearn 40ft tankcar detail.
Pecos River (brass)
Paint
Tanks (gasoline) buff with black underframe.
15 drops- Floquil Armour Yellow
1 drop- Roof Brown
or mix 50% Floquil RR133- SP Armour Yellow and 50% RR11- Reefer White
Lettering & Numbering
Decals
Jerry Glow Decals
The Jerry Glow decal set will do any post-1931 SP tank car lettering (i.e. older cars which were repainted), and class numbers and built dates are included. It will also include the diamond "S" for the Liquide Sugar cars.
Tony Thompson
White Diamond on Tank car
Jerry Glow Custom Decals
Jerry Glow will try to include the equivalent in the new decal set he will sell.
Microscale
Use the Microscale decal set MC-4044 for this diamond-S. The Microscale set also does include the lettering for these cars,
common in the 1950s though uncommon in later years, which stated “FOR LIQUID SUGAR LOADING ONLY.”
O-50-14
SP #47680-47729
These 36’ cars hold 8000-gallons. It was built by General American. It’s riveted constructed the tank and is strapped on and resting on wood blocks.
Trucks
Barber stabilized ASF trucks (very similar, though not identical, to the ASF A-3).
Paint
0-50-14 ‘42 & ‘55 paint schemes (some ‘55 have ACL labels)
Lettering & Numbering
With black lettering (gasoline service)
Drawing
Southern Pacific Freight Cars, Volume 5: Hoppers, Tank Cars, pg. 341
Reference
Southern Pacific Freight Cars, Volume 5: Hoppers, Tank Cars, pg. 320, 341-343
See the class page: http://www.railgoat.railfan.net/spcars/byclass/tank/o050-14.htm
Modeling 0-50-14 Tank Cars
Details
Trucks
Kato makes an excellent HO model of the Barber stabilized ASF trucks (very similar, though not identical, to the ASF A-3). There is also evidence that Athearn's "Bettendorf" truck was intended to be an A-3, as it has many of the features, but is fairly crude compared to the Kato version.
Tony Thompson
The closest HO sideframe match is the Intermountain ASF (not an A-3) but Branchline's "Barber S-2" truck is close and it sports the appropriate "ride control" wedges. But from a good photo it appears the prototype truck had a spring plank and neither of the above models includes that feature.
Tim O'Connor
Athearn
One approach would be to cut down the length of an Athearn tank car underframe (and replace practically every detail on it) and use an Intermountain 8000-gal. tank, but the tank will be somewhat wrong.
Tony Thompson
Intermountain
The Intermountain ACF 8,000 gallon tank is nearly identical to the GACC tank in length, diameter, dome and rivet seams. You could fabricate new hand rails, and bash the underframe using the Intermountain center sill and Athearn saddles/bolsters and use the IM walkways.
But this tank is not recommended for the following reason; The Intermountain Tank has molded on straps which are in line with the bolsters. The bolsters, of course, are determined by the wheelbase of the car, and GATX tank cars were of a different wheelbase. You could remove these straps (much like Sunshine models did for their UTLX X3 tank) and redo them in the correct location, but it is a delicate job with lots of rivets to avoid and replace. Try the Red Caboose/Drake brass tank car.
Red Caboose
W.A. Drake (brass)
Lettering & Numbering
The Drake brass car is lettered O-50-14 and the gallonage is 79xx. It's painted in the 1955 scheme w/ gothic letters and large "S".
Tim O'Connor
I'm aware of the cars with later paint scheme being correct, and once the error was discovered at "Drake," there were decals put into the boxes of the early paint scheme so modelers could correct
them. My own Drake car in original paint was wrong, and I've been correcting a bunch of Otis McGee's cars which were wrong, so I've seen a number of incorrect ones. Luckily my decal set makes it easy to fix.
Tony Thompson
Lettering & Numbering
Decals
Jerry Glow Decals
The Jerry Glow decal set will do any post-1931 SP tank car lettering (i.e. older cars which were repainted), and class numbers and built dates are included.
Tony Thompson
Gallonage for O-50-14 is also included, which may be useful if you got ahold of one of the W.A. Drake HO brass cars intended as that class, but lettered on both ends to have "Capacity 00000 Gals." and classed as "O-40-1" (there was no such class built).
Tony Thompson
0-70-1
SP #63000-63007
70 ton tank cars were originally 50 ton cars that had received new trucks. The cars became O-70-1. Only part of them were converted; a bunch of them remained as 50-ton cars.
Tony Thompson
Some were converted for acid service.
Reference
Southern Pacific Freight Cars, Volume 5: Hoppers, Tank Cars, pg. 346
Modeling 0-70-1 Tank Cars
Red Caboose
10,000 gallon Type 103W tank car, add our dome platforms with brackets and a four piece Apex walkway that wraps around the car. Replace your plastic walkway or overlay it with the new stainless steel walkway.
O-100-1 Tank Car
SP #67250-67251
These O-100-1 class cars were 20,000-gallon cars with frames, and other early 1960s SP car classes, are already written up in my next freight car volume.
Tony Thompson
Paint
Tank cars were painted black.
Reference
Southern Pacific Freight Cars, Volume 5: Hoppers, Tank Cars, pg. 346
Modeling 0-100-1 Tank Cars
Atlas
The new Atlas 20,000 gal. tank car is good for an SSW car! This is a large 60's era general service tank car.
SP had several tank cars approximately this size. One of the things about this car is it is an early frameless. Some of the cars in that size have the underframe. This car may be a good start for a kitbash of the SP lube oil cars. These were 4 compartment, but the diameter is real close.
In the book is also listed SP #67250/1 (2 cars) at 20,704 (actual g. for Atlas car, BUT there is a poor photo of the car and it appears to be a framed car. Looks very close to the old Athearn 62' tank though shorter (52+ft.) So we still need info. The Atlas car could have gone to SP later than my books ‘65 date. No builder info.
Tony Thompson

O-100-2 Tank Car
SP #67500-67517
Paint
Tank cars were painted black.
Lettering & Numbering
For a lettering diagram see: Southern Pacific Freight Cars, Volume 5: Hoppers, Tank Cars, pg. 352
Reference
Southern Pacific Freight Cars, Volume 5: Hoppers, Tank Cars, pg. 346-347
O-100-3 Tank Car
SP #63100-63104
Paint
Tank cars were painted black.
Lettering & Numbering
For a lettering diagram see: Southern Pacific Freight Cars, Volume 5: Hoppers, Tank Cars, pg. 352
Reference
Southern Pacific Freight Cars, Volume 5: Hoppers, Tank Cars, pg. 346, 348
O-100-4 Tank Car
SP #63105-63127
SP #63128-63135
Paint
Tank cars were painted black.
Lettering & Numbering
For a lettering diagram see: Southern Pacific Freight Cars, Volume 5: Hoppers, Tank Cars, pg. 352
Reference
Southern Pacific Freight Cars, Volume 5: Hoppers, Tank Cars, pg. 346, 349-350
O-100-5 Tank Car
SP #67275-67276
There is a footnote in my Feb. ‘65 book on a third car. SP #67275/6 (2 cars) have an apx. 20,100 capy. The note states the gallonage is apx. as the cars are not yet delivered. They are listed as for lube oil. At 57' 8" they are substantially longer. These are the two 4-compartment cars, Class O-100-5.
Tony Thompson
Paint
Tank cars were painted black.
Lettering & Numbering
For a lettering diagram see: Southern Pacific Freight Cars, Volume 5: Hoppers, Tank Cars, pg. 352
Reference
Southern Pacific Freight Cars, Volume 5: Hoppers, Tank Cars, pg. 346, 350-353
O-100-7 Tank Car
SP #67300-67309
SP #67310-67349
Paint
Tank cars were painted black.
Reference
Southern Pacific Freight Cars, Volume 5: Hoppers, Tank Cars, pg. 346, 353
Special Tank Cars
Wine Tank Cars
General American 40' wood milk tank cars
These are classic General American- built 40' wood milk tank cars as typically leased by General American- Pfaudler under GPEX reporting marks (some of the earliest cars were leased by GA under GARE reporting marks prior to GA's forming the car- leasing joint venture with Pfaudler). Some cars have unusual reinforcement done to both the visible end and side. This was an ad hoc patch job for sheathing that was in poor shape. The cars have double doors. In later years some of the surviving cars of this type were rebuilt by GA with narrow single doors as started appearing on the steel rebuilds in the '30s. One CMWX car (#122) of this GA design come with a single door.
Paint
"Another Carload" scheme that appears to have been used on only the earliest wood cars of General American design; the intermediate (later 1950s?). There was also a variant of the first scheme that was published previously elsewhere where the "Another Carload" slogan appears in script rather than a block font.
"For Goodness Sake" scheme appeared on both the GA wood cars and later Merchants Despatch (MDT)-design wood cars; and the final (ca. 1960s).
MDT Design 40' wood milk tank cars
It represents their later style underframe with the distinctive exposed-channel side sill with outward-facing flanges. It too has some non-standard strapping around the side and end, again presumably to hold deteriorating sheathing in place. This style of car was owned outright in large numbers by Bowman in Chicago and Borden in New York (and elsewhere). MDT did not lease their milk cars like GA did, they built for outright sale only.
Paint
"For Goodness Sake" scheme that appears on both the GA wood cars and later Merchants Despatch (MDT)-design wood cars; and the final (ca. 1960s).
"America's Finest" scheme appears on the MDT wood cars and General American-built steel cars.
Borden Butter Dish
Many of the Borden cars were later rebuilt to the famous butter dish design that we have all seen in many publications. Although models of the butter dish cars have appeared over the years,
Modeling Borden Butter Dish
No model of the original cars as typified by this CMWX car have appeared to date.
General American 40' All-Steel Milk Tank Car
The General American milk tank car was a postwar 40' all-steel design. This car too was once leased by General American-Pfaudler under GPEX reporting marks. This was once a car leased by Hood in Boston as GPEX 1068 and CCCo simply kept the car number when they purchased the car from GA-P and repainted it.
Paint
"America's Finest" scheme that appears on the MDT wood cars and General American-built steel cars.
Modeling General American 40' All-Steel Milk Tank Car
Intermountain
Models of this car are being done by Intermountain.
Lettering & Numbering
Decals
Decals are not available.
Reference
There is a soft cover book titled "Serving the Golden Empire" by Joe Dale Morris sold by the SPH&TS which covers the Clovis "Friant" Branch which has five pictures of trains with wine tank cars in consist. Also included are maps and write ups about the wineries found along line. Pics of tank cars shows loading/unloading at the Italian Swiss Colony winery in Clovis/Tarpey.
For tank car and hopper car pictures taken on the Friant branch, might be possible to order enlargements from Stan Kistler of the photos he has in Joe Morris' book about the branch. Let him know what you're looking for. Unfortunately, Mr. Kistler has been selling off many of his negatives.
Stan Kistler's address is PO Box 977, Grass Valley, CA 95945.
Modeling Wine Cars
AHM
You're better off looking for the AHM 6 dome tank, and adding wire grabs, etc. Very cheap compared to the other.
The car is ludicrously wrong in size and proportions, and has no remotely close prototype. It's about 12,000 gallons in effective size, something never approached by any real car. The domes are correspondingly enlarged and are equally wrong. Take into account the fact that it's an insulated car; if it were not insulated, it would be even more oversize.
Tony Thompson
Lettering & Numbering
Decals
Some Champ decals and you're done.
Precision Scale
They make a brass wine car model, The Thomas model is similar to a Precision Scale import. A GATX tank would have a different underframe. Thomas may have followed an ACF design, but ACF 6-dome tanks have lower, wider domes.
Red Caboose
Red Caboose already makes a single dome Roma Wine tank car. They also make a Roma Wine wood reefer:
Red Caboose is more often than not prototypically accurate.
Chateau Martin Wine Cars
These cars are actually AAR Class BMT (tank) cars, not reefers, but externally look like other reefers. Ordinarily they are used as insulated box cars in service, in other words not iced.
Paint
The photos of the Chateau Martin cars depict the three known paint schemes of these cars: the original (1950s and perhaps earlier).
Modeling Chateau Martin Wine Cars
With any California layout’s location, a Chateau Martin wine car is almost obligatory.
F&C
F&C produces resin kits in HO scale and at one time the NHRHTA sold a private-label version of the F&C model.
Laconia
Restore a Laconia kit for one of these cars.
Paint
The distinctive virtue of the Laconia version is an accurate “claret red” color, not the horrid deep purple of a more recent commercial model.
Lettering & Numbering
Decals
Decals would be a problem (Walthers sold decals eons ago).
Italian Swiss Colony Winery
Roma Wine Type 6 Dome Tank Car
View a Roma Wine type 6 dome tank car on the siding at Glendale at the following video. Go to 11:13 on the video.
Chris
It appears to be a six compartment GATC Type-30 car. It was difficult to make out much more than that from the film.
Gene Deimling